Twee-onder-één-kapwoningen
					Bekijk de Wkb-woningen				
				Twee-onder-één-kapwoning
Als u op zoekt bent naar ruime woningen voor gezinnen, dan is de twee-onder-één-kapwoning ideaal. De twee-onder-één-kapwoning is de perfecte woning voor gezinnen die ruimte, luxe en een toekomstbestendige woning zoeken.
Voor gezinnen die ruim willen wonen
									De twee-onder-één-kapwoningen bieden wij aan in de varianten Medium, Large en Extra Large. De woningen bestaan uit drie bouwlagen, waarvan de bovenste bouwlaag wordt voorzien van een hellend dak of een plat dak.
De slim opgezette plattegronden bieden veel leefruimte, drie volwaardige slaapkamers en een ruime vrij indeelbare zolder. De woningen kunnen worden vergroot door het toevoegen van een uitbouw of dakkapel. U kunt ervoor kiezen om één of twee extra slaapkamers te creëren op de zolderverdieping.
Bent u op zoek naar een levensloopbestendige twee-onder-één-kapwoning? Ook die bieden wij aan. Neem contact met ons op voor meer informatie.
				De slim opgezette plattegronden bieden veel leefruimte, drie volwaardige slaapkamers en een ruime vrij indeelbare zolder. De woningen kunnen worden vergroot door het toevoegen van een uitbouw of dakkapel. U kunt ervoor kiezen om één of twee extra slaapkamers te creëren op de zolderverdieping.
Bent u op zoek naar een levensloopbestendige twee-onder-één-kapwoning? Ook die bieden wij aan. Neem contact met ons op voor meer informatie.
 
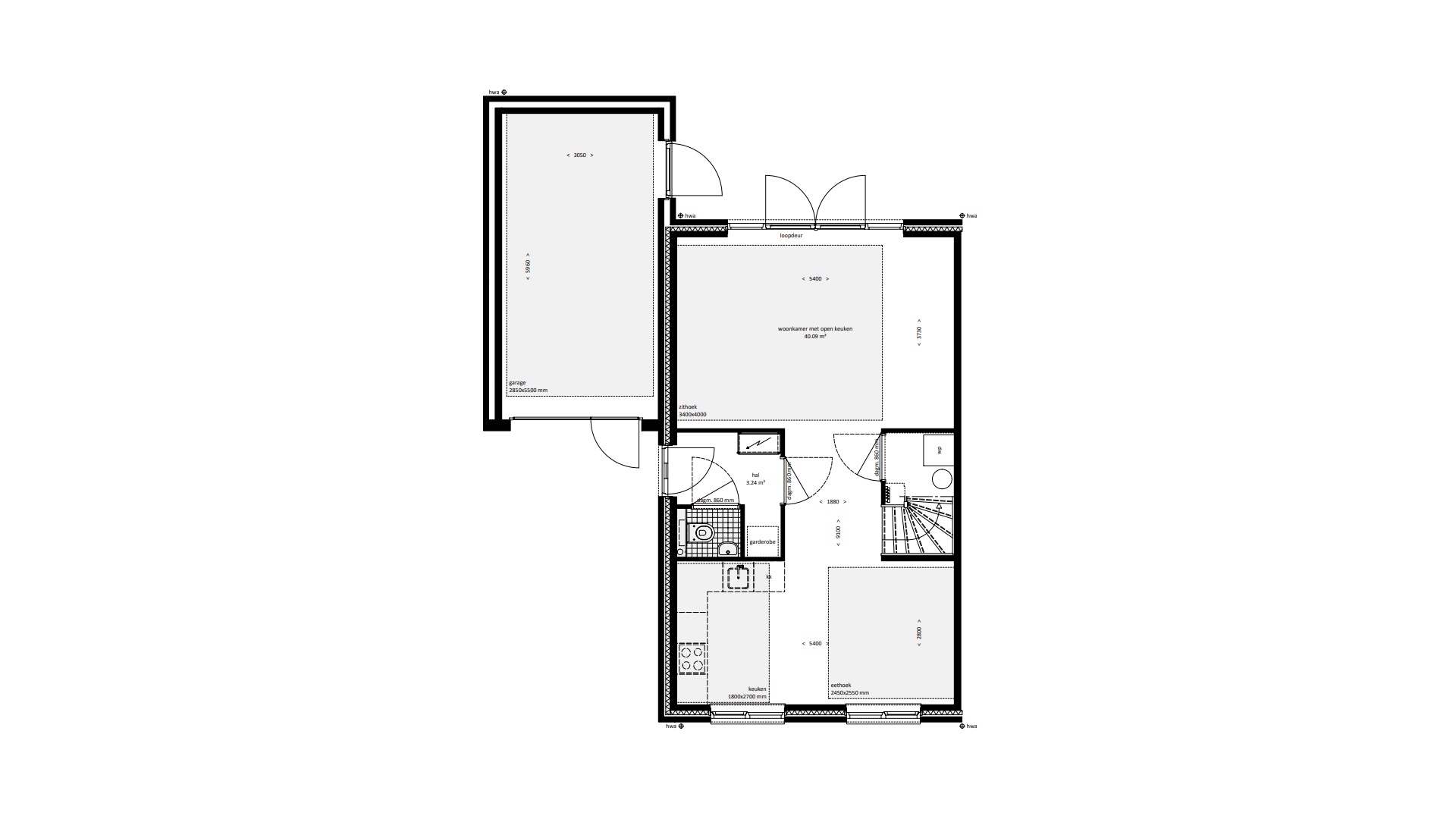
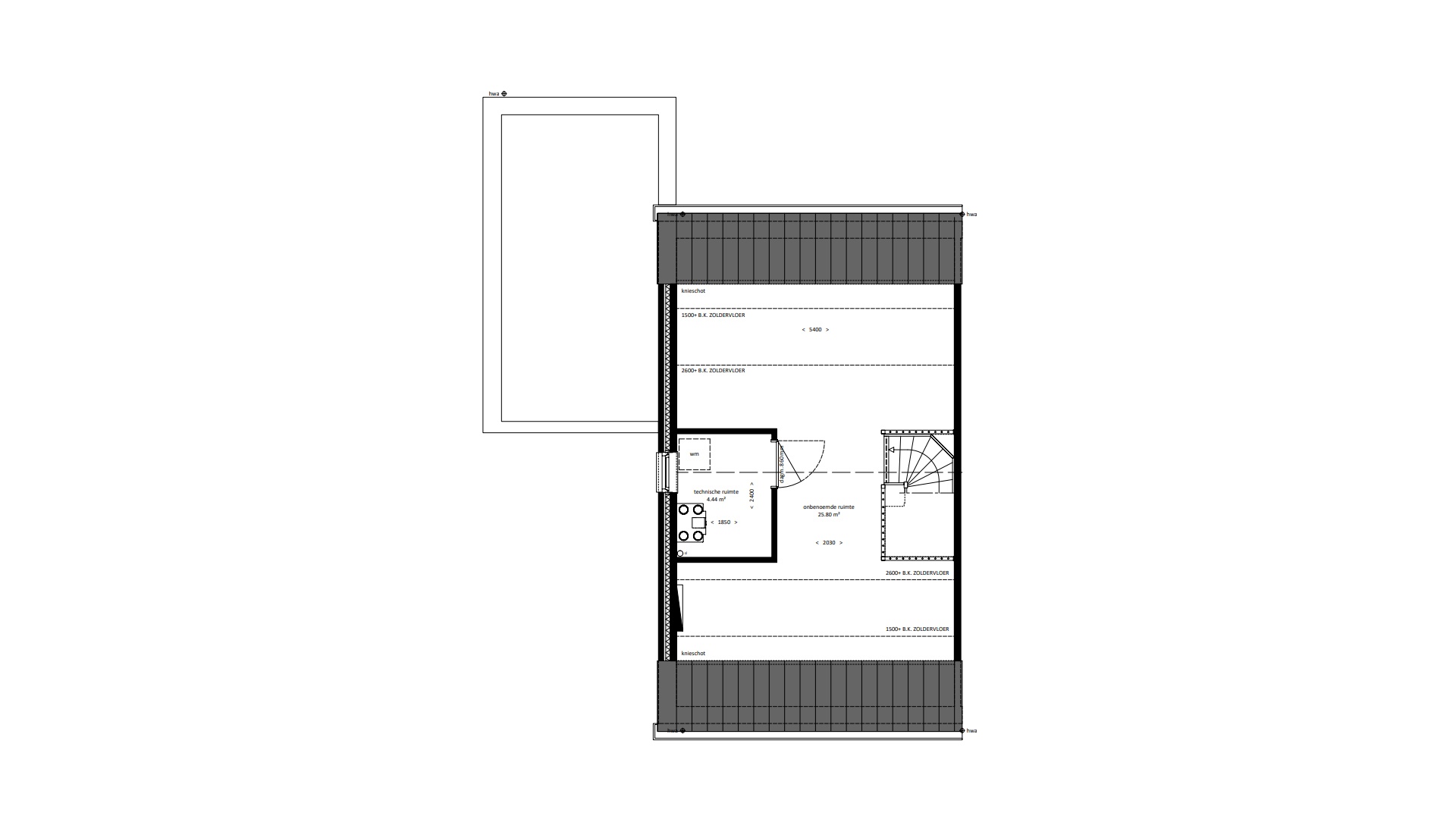
															Plattegronden - Medium
Specificaties
Medium
							Medium
					| Aantal bouwlagen | 3 | 
| Gebruiksoppervlakte, vanaf | 133 m2 | 
| Beukmaat, vanaf | 5400 mm | 
| Dieptemaat binnen, vanaf | 9100 mm | 
| Aantal slaapkamers | 3 | 
| Aantal toiletten | 2 | 
| Daksoort | Zadel, mansarde of plat | 
| Energieprestatie | BENG, Energieneutraal, NOM | 
| Product-marktcombinatie | PMC 5 | 
| Installaties | |
| Opwekker warmte en koude | Lucht/water warmtepomp | 
| Afgiftesysteem begane grond | Vloerverwarming/-koeling | 
| Afgiftesysteem verdieping(en) | Hybride convectoren | 
| Ventilatiesysteem | Balansventilatie met wtw | 
| Opties en voorzieningen | |
| Uitbouw 1.200 mm | Mogelijk | 
| Uitbouw 2.400 mm | Mogelijk | 
| Openslaande deuren | Mogelijk | 
| Dakkapel(len) | Mogelijk (bij hellend dak) | 
| (Extra) dakraam | Mogelijk (bij hellend dak) | 
| (Extra) slaapkamer(s) | Mogelijk | 
Plattegronden - Large
Specificaties
Large
							Large
					| Aantal bouwlagen | 3 | 
| Gebruiksoppervlakte, vanaf | 145 m2 | 
| Beukmaat, vanaf | 5700 mm | 
| Dieptemaat binnen, vanaf | 9400 mm | 
| Aantal slaapkamers | 3 | 
| Aantal toiletten | 2 | 
| Daksoort | Zadel, mansarde of plat | 
| Energieprestatie | BENG, Energieneutraal, NOM | 
| Product-marktcombinatie | PMC 5 | 
| Installaties | |
| Opwekker warmte en koude | Lucht/water warmtepomp | 
| Afgiftesysteem begane grond | Vloerverwarming/-koeling | 
| Afgiftesysteem verdieping(en) | Hybride convectoren | 
| Ventilatiesysteem | Balansventilatie met wtw | 
| Opties en voorzieningen | |
| Uitbouw 1.200 mm | Mogelijk | 
| Uitbouw 2.400 mm | Mogelijk | 
| Openslaande deuren | Mogelijk | 
| Dakkapel(len) | Mogelijk (bij hellend dak) | 
| (Extra) dakraam | Mogelijk (bij hellend dak) | 
| (Extra) slaapkamer(s) | Mogelijk | 
Plattegronden - Extra Large
Specificaties
Extra Large
							Extra Large
					| Aantal bouwlagen | 3 | 
| Gebruiksoppervlakte, vanaf | 164 m2 | 
| Beukmaat, vanaf | 6000 mm | 
| Dieptemaat binnen, vanaf | 10000 mm | 
| Aantal slaapkamers | 3 | 
| Aantal toiletten | 2 | 
| Daksoort | Zadel, mansarde of plat | 
| Energieprestatie | BENG, Energieneutraal, NOM | 
| Product-marktcombinatie | PMC 5 | 
| Installaties | |
| Opwekker warmte en koude | Lucht/water warmtepomp | 
| Afgiftesysteem begane grond | Vloerverwarming/-koeling | 
| Afgiftesysteem verdieping(en) | Hybride convectoren | 
| Ventilatiesysteem | Balansventilatie met wtw | 
| Opties en voorzieningen | |
| Uitbouw 1.200 mm | Mogelijk | 
| Uitbouw 2.400 mm | Mogelijk | 
| Openslaande deuren | Mogelijk | 
| Dakkapel(len) | Mogelijk (bij hellend dak) | 
| (Extra) dakraam | Mogelijk (bij hellend dak) | 
| (Extra) slaapkamer(s) | Mogelijk | 

 
								 
								 
								 
								 
								 
								 
								 
								