Starterswoningen
Bekijk de Wkb-woningen
Starterswoning
De vraag naar betaalbare woningen voor starters is groter dan ooit. Op die vraag spelen wij in met onze serie starterswoningen. Naast deze doelgroep zijn de woningen ook ideaal voor singles, huishoudens van 2 of 3 personen of voor actieve senioren.
De ideale starterswoning
Wij bieden drie basiswoningen voor starters in de Extra Small, Small en Medium variant. De grootte van deze woningen varieert tussen 50 en 80 m2. Indien gewenst kunnen de woningen worden vergroot. Dit doet u door te kiezen voor een ruimere dieptemaat of door het toevoegen van een optionele uitbouw en/of dakkapel.
Indien u bouwt voor de sociale huursector, dan wordt regelmatig gevraagd naar de specificatie voor de Product-marktcombinatie (PMC). De starterswoningen voldoen aan de voorwaarden van PMC 1, 2 en 3. In de plattegronden zijn de zogenaamde ‘woonmatjes’ weergegeven, zoals gedefinieerd door het Netwerk Conceptueel Bouwen in samenwerking met Aedes.
Indien u bouwt voor de sociale huursector, dan wordt regelmatig gevraagd naar de specificatie voor de Product-marktcombinatie (PMC). De starterswoningen voldoen aan de voorwaarden van PMC 1, 2 en 3. In de plattegronden zijn de zogenaamde ‘woonmatjes’ weergegeven, zoals gedefinieerd door het Netwerk Conceptueel Bouwen in samenwerking met Aedes.
3 varianten
Ga direct naar de starterswoning van uw wens.
Plattegronden - Extra Small
Specificaties
Extra Small
Extra Small
| Aantal bouwlagen | 2 |
| Gebruiksoppervlakte, vanaf | 53 m2 |
| Beukmaat, vanaf | 3900 mm |
| Dieptemaat binnen, vanaf | 8200 mm |
| Aantal slaapkamers | 1 |
| Aantal toiletten | 1 |
| Daksoort | Zadel, mansarde of plat |
| Energieprestatie | BENG, Energieneutraal, NOM |
| Product-marktcombinatie | PMC 1, PMC 2 |
| Installaties | |
| Opwekker warmte en koude | Lucht/water warmtepomp |
| Afgiftesysteem begane grond | Vloerverwarming/-koeling |
| Afgiftesysteem verdieping | Hybride convectoren |
| Ventilatiesysteem | Balansventilatie met wtw |
| Opties | |
| Uitbouw 1.200 mm | Mogelijk |
| Uitbouw 2.400 mm | Mogelijk |
| Openslaande deuren | Mogelijk |
| Dakkapel(len) | Mogelijk (bij hellend dak) |
| (Extra) dakraam | Mogelijk (bij hellend dak) |
| (Extra) slaapkamer(s) | Niet mogelijk |
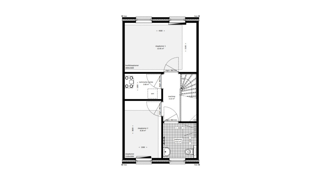
Plattegronden - Small
Specificaties
Small
Small
| Aantal bouwlagen | 2 |
| Gebruiksoppervlakte, vanaf | 73 m2 |
| Beukmaat, vanaf | 4500 mm |
| Dieptemaat binnen, vanaf | 8500 mm |
| Aantal slaapkamers | 2 |
| Aantal toiletten | 2 |
| Daksoort | Mansarde of plat |
| Energieprestatie | BENG, Energieneutraal, NOM |
| Product-marktcombinatie | PMC 2, PMC 3 |
| Installaties | |
| Opwekker warmte en koude | Lucht/water warmtepomp |
| Afgiftesysteem begane grond | Vloerverwarming/-koeling |
| Afgiftesysteem verdieping | Hybride convectoren |
| Ventilatiesysteem | Balansventilatie met wtw |
| Opties | |
| Uitbouw 1.200 mm | Mogelijk |
| Uitbouw 2.400 mm | Mogelijk |
| Openslaande deuren | Mogelijk |
| Dakkapel(len) | Mogelijk (bij hellend dak) |
| (Extra) dakraam | Mogelijk (bij hellend dak) |
| (Extra) slaapkamer(s) | Niet mogelijk |
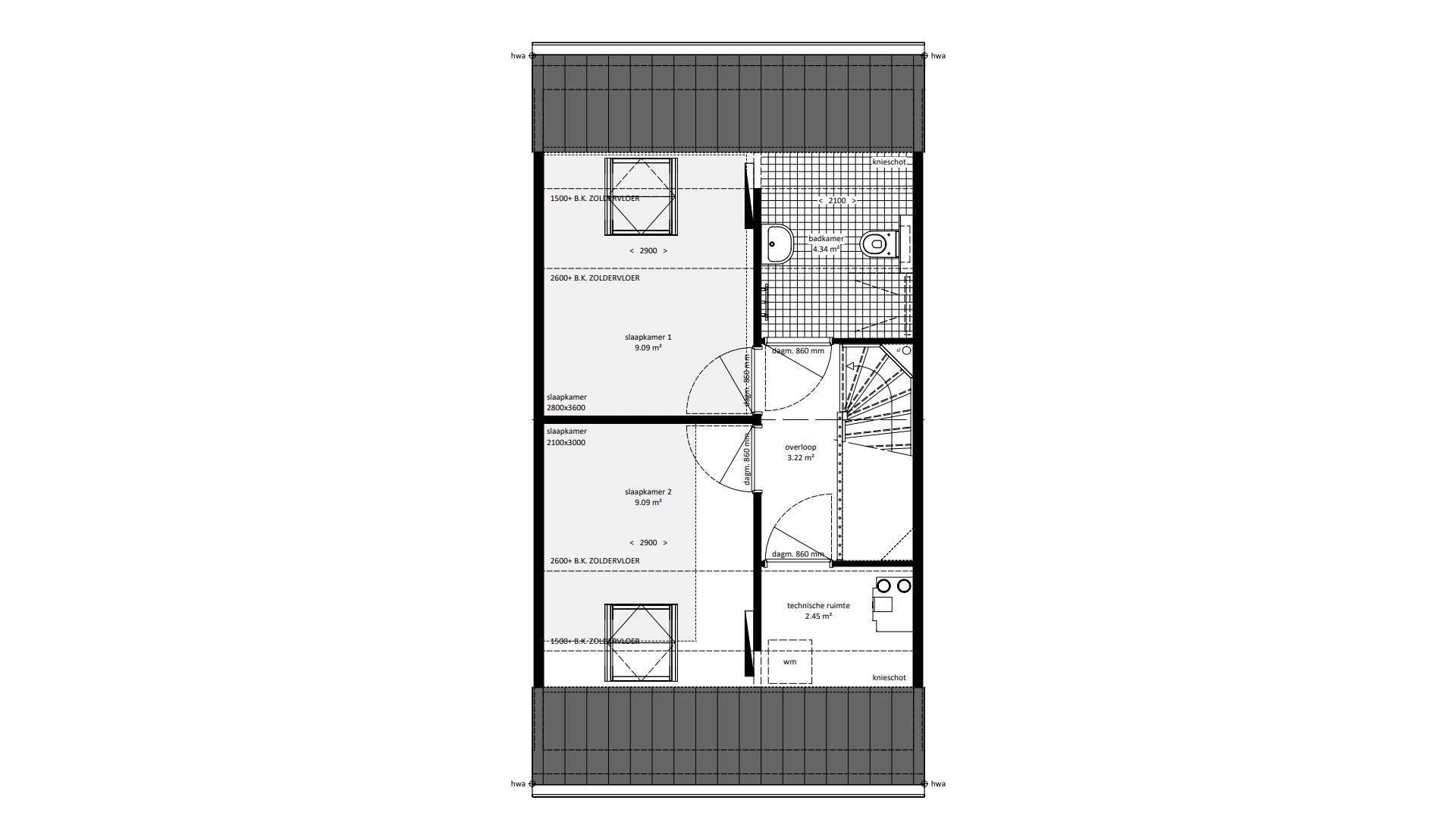
Plattegronden - Medium
Specificaties
Medium
Medium
| Aantal bouwlagen | 2 |
| Gebruiksoppervlakte, vanaf | 79 m2 |
| Beukmaat, vanaf | 5100 mm |
| Dieptemaat binnen, vanaf | 9100 mm |
| Aantal slaapkamers | 2 |
| Aantal toiletten | 2 |
| Daksoort | Zadel, mansarde of plat |
| Energieprestatie | BENG, Energieneutraal, NOM |
| Product-marktcombinatie | PMC 2, PMC 3 |
| Installaties | |
| Opwekker warmte en koude | Lucht/water warmtepomp |
| Afgiftesysteem begane grond | Vloerverwarming/-koeling |
| Afgiftesysteem verdieping | Hybride convectoren |
| Ventilatiesysteem | Balansventilatie met wtw |
| Opties | |
| Uitbouw 1.200 mm | Mogelijk |
| Uitbouw 2.400 mm | Mogelijk |
| Openslaande deuren | Mogelijk |
| Dakkapel(len) | Mogelijk (bij hellend dak) |
| (Extra) dakraam | Mogelijk (bij hellend dak) |
| (Extra) slaapkamer(s) | Niet mogelijk |
