Eengezinswoningen
Eengezinswoning
Sinds jaar en dag is de eengezinswoning de meest populaire woning in Nederland. De zogenaamde rijwoning is de ideale woning voor gezinnen. Door de slimme modulaire maatvoering is de eengezinswoning geschikt voor grote en kleine gezinnen en geschikt voor de koopsector, sociale huursector of voor de vrije verhuur.
Voor gezinnen die prettig willen wonen
De eengezinswoningen bieden wij aan in drie basisvarianten: Small, Medium en Large. De eengezinswoningen bestaan uit drie bouwlagen, waarvan de bovenste bouwlaag wordt voorzien van een hellend dak of een plat dak.
De woningen kunnen worden vergroot door het toevoegen van een uitbouw of dakkapel. De zolderverdieping is standaard voorzien van een vrij indeelbare ruimte. U kunt ervoor kiezen om hier één of twee extra slaapkamers te creëren.
Indien u bouwt voor de sociale huursector, dan wordt regelmatig gevraagd naar de specificatie voor de Product-marktcombinatie (PMC). De eengezinswoningen voldoen aan de voorwaarden van PMC 2, 3 en 4. In de plattegronden zijn de zogenaamde ‘woonmatjes’ weergegeven, zoals gedefinieerd door het Netwerk Conceptueel Bouwen in samenwerking met Aedes.
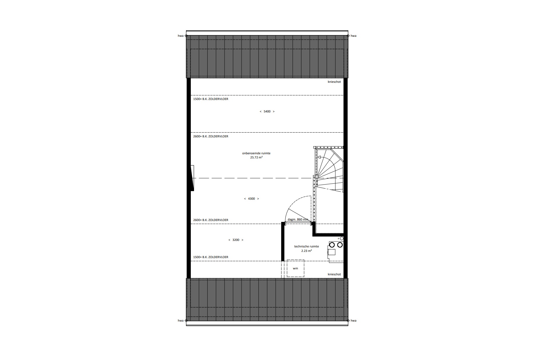
Plattegronden - Small
Specificaties
| Aantal bouwlagen | 3 |
| Gebruiksoppervlakte, vanaf | 90 m2 |
| Beukmaat, vanaf | 4200 mm |
| Dieptemaat binnen, vanaf | 8200 mm |
| Aantal slaapkamers | 2 |
| Aantal toiletten | 2 |
| Daksoort | Zadel, mansarde of plat |
| Energieprestatie | BENG, Energieneutraal, NOM |
| Product-marktcombinatie | PMC 2, PMC 3 |
| Installaties | |
| Opwekker warmte en koude | Lucht/water warmtepomp |
| Afgiftesysteem begane grond | Vloerverwarming/-koeling |
| Afgiftesysteem verdieping(en) | Hybride convectoren |
| Ventilatiesysteem | Balansventilatie met wtw |
| Opties en voorzieningen | |
| Uitbouw 1.200 mm | Mogelijk |
| Uitbouw 2.400 mm | Mogelijk |
| Openslaande deuren | Mogelijk |
| Dakkapel(len) | Mogelijk (bij hellend dak) |
| (Extra) dakraam | Mogelijk (bij hellend dak) |
| (Extra) slaapkamer(s) | Mogelijk |
Plattegronden - Medium
Specificaties
| Aantal bouwlagen | 3 |
| Gebruiksoppervlakte, vanaf | 113 m2 |
| Beukmaat, vanaf | 5100 mm |
| Dieptemaat binnen, vanaf | 8500 mm |
| Aantal slaapkamers | 3 |
| Aantal toiletten | 2 |
| Daksoort | Zadel, mansarde of plat |
| Energieprestatie | BENG, Energieneutraal, NOM |
| Product-marktcombinatie | PMC 4 |
| Installaties | |
| Opwekker warmte en koude | Lucht/water warmtepomp |
| Afgiftesysteem begane grond | Vloerverwarming/-koeling |
| Afgiftesysteem verdieping(en) | Hybride convectoren |
| Ventilatiesysteem | Balansventilatie met wtw |
| Opties en voorzieningen | |
| Uitbouw 1.200 mm | Mogelijk |
| Uitbouw 2.400 mm | Mogelijk |
| Openslaande deuren | Mogelijk |
| Dakkapel(len) | Mogelijk (bij hellend dak) |
| (Extra) dakraam | Mogelijk (bij hellend dak) |
| (Extra) slaapkamer(s) | Mogelijk |
Plattegronden - Large
Specificaties
| Aantal bouwlagen | 3 |
| Gebruiksoppervlakte, vanaf | 122 m2 |
| Beukmaat, vanaf | 5100 mm |
| Dieptemaat binnen, vanaf | 8800 mm |
| Aantal slaapkamers | 3 |
| Aantal toiletten | 2 |
| Daksoort | Zadel, mansarde of plat |
| Energieprestatie | BENG, Energieneutraal, NOM |
| Product-marktcombinatie | PMC 4 |
| Installaties | |
| Opwekker warmte en koude | Lucht/water warmtepomp |
| Afgiftesysteem begane grond | Vloerverwarming/-koeling |
| Afgiftesysteem verdieping(en) | Hybride convectoren |
| Ventilatiesysteem | Balansventilatie met wtw |
| Opties en voorzieningen | |
| Uitbouw 1.200 mm | Mogelijk |
| Uitbouw 2.400 mm | Mogelijk |
| Openslaande deuren | Mogelijk |
| Dakkapel(len) | Mogelijk (bij hellend dak) |
| (Extra) dakraam | Mogelijk (bij hellend dak) |
| (Extra) slaapkamer(s) | Mogelijk |
